Book a Property Valuation
SSTC

Erskine Road, Colwyn Bay

Price £299,950

End of Terrace House

Overview

4 Bedroom End of Terrace House for sale in Erskine Road, Colwyn Bay

Key Features:

  • Outstanding End Row 4 Bedroom Family Home
  • Set in Private Courtyard Gardens in Central Location
  • Off Road Parking & Car Port
  • 2 Double Garages, Work Room, Huge Loft Above
  • 2 Receptions, Fitted Kitchen Breakfast
  • Utility, Cloakroom, Bathroom & Shower Room
  • Double Glazing, Gas C.H
  • Tenure Freehold, Council Tax Band C
  • EPC Rating 78C Potential 86B

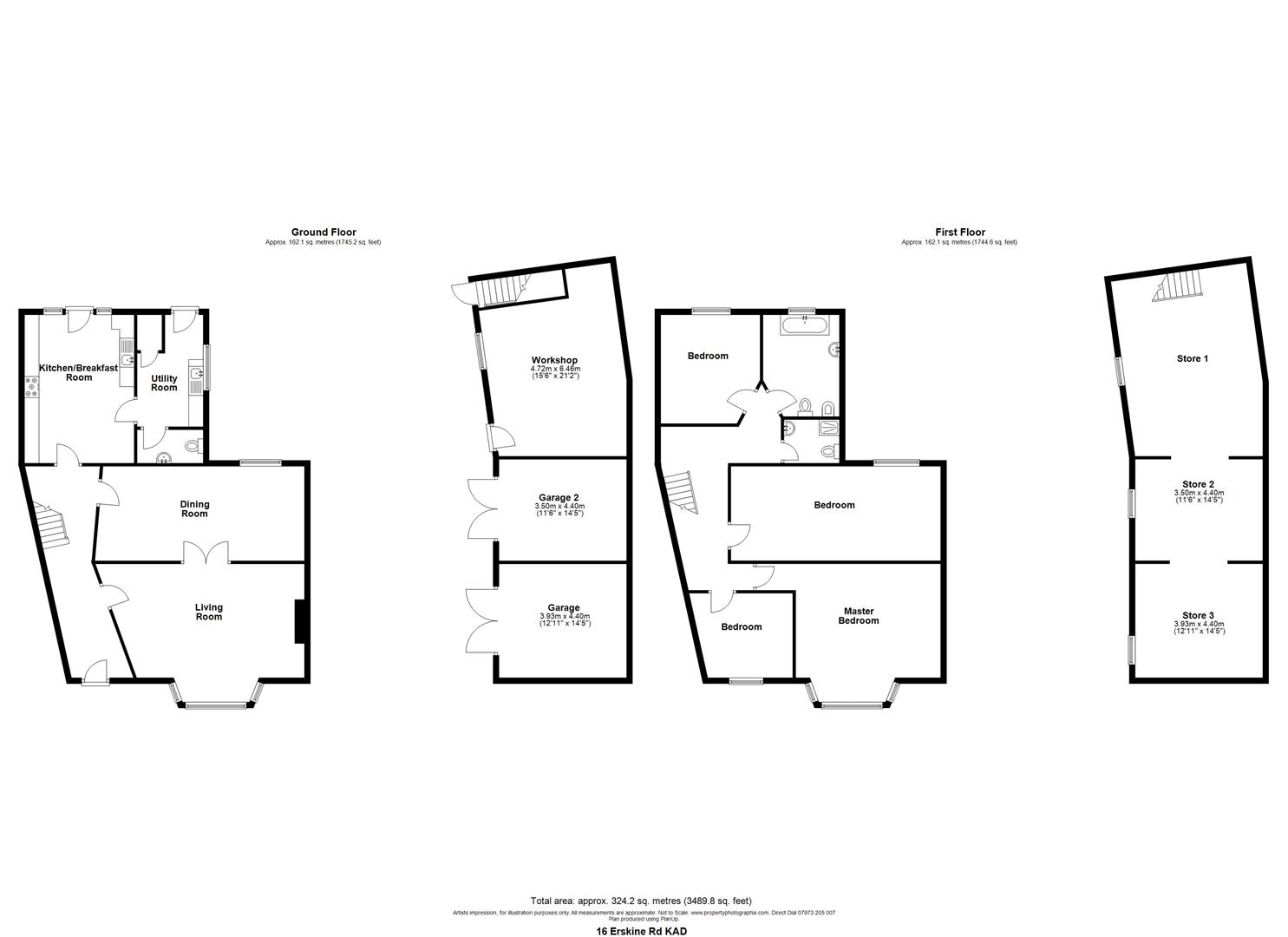
Undoubtedly, one of the finest homes in the vicinity comprising an END OF ROW 4 BEDROOM FAMILY HOME with BATHROOM & SHOWER ROOM together with PRIVATE COURTYARD GARDENS, OFF ROAD PARKING and 2 LARGE GARAGES/WORK SHOPS and STORES. In the same ownership for some 40 years, the vendors have transformed the property into a lovely family home of appeal which must be viewed to appreciate. From the HALLWAY is the FRONT LOUNGE, LARGE DINING ROOM & feature brick fireplace, KITCHEN BREKFAST ROOM, UTILITY ROOM and CLOAKROOM. The outside is a unique feature of the house which provides a sheltered and sunny sitting relaxation area. In a central position the house is within easy walk of the town centre, bus services and schools for all ages. Tenure Freehold, Council Tax Band C. EPC Rating 78C Potential 86B Ref CB7933

Entrance - Double glazed front door to Hall, dado rail, coved ceilings, central heating radiator, under stairs coats area

Lounge - 5.5 x 4.5 (18'0" x 14'9") - White fireplace surround with slate back and hearth, living flame electric log burner fire, double glazed bay window, central heating radiator, 2 double folding doors to dining room

Lovely Dining Room - 5.9 x 3.4 (19'4" x 11'1") - Featuring a brick fireplace with two arched wine alcoves, quarry tiled hearth, coved ceilings, dado rail, central heating radiator

Kitchen Breakfast Room - 5.1 x 3.6 (16'8" x 11'9") - Range of Chestnut base cupboards and drawers, white work top surfaces, tiled floor, stainless steel sink unit, built in dishwasher, dado rail, Creda electric hob unit and gas range, wine store, double glazed window and door to rear gardens.

Utility Room - 3.7 x 2.1 (12'1" x 6'10") - Tiled floor, stainless steel sink unit, double glazed window and door, plumbing for washing machine, boiler cupboard housing the gas central heating boiler

Cloakroom - W.C, wash hand basin, double glazed

First Floor - Stairway from the Hall to First Floor and Landing

Landing - Landing on two levels, loft ladder, dado rail, central heating radiator, sky light

Bedroom 1 - 6 x 3.4 (19'8" x 11'1") - Double glazed, central heating radiator, dado rail, 2 double door wardrobe units and top cupboards

Bedroom 2 - 3.9 x 3.4 (12'9" x 11'1") - Double glazed, 2 central heating radiators

Bedroom 3 - 4.7 x 3.5 (15'5" x 11'5") - Double glazed bay window, central heating radiator, 3 double door wardrobe units and top cupboards

Dressing Room Or Single Bedroom - 2.5 x 1.8 (8'2" x 5'10") - Central heating radiator, double glazed, fitted wardrobes and top cupboards

Shower Room - 2.03m x 1.75m (6'8 x 5'9) - Square shower cubicle and unit, w.c, pedestal wash hand basin, double glazed, beige tiled walls and floor, heated towel radiator

Bathroom - 3.4 x 2.3 (11'1" x 7'6") - Panel bath set in a wide archway, shower mixer taps, double glazed, central heating radiator, pedestal wash hand basin, w.c, bidet, 2 vanity lights

The Garages/Work Rooms - 4.6 x 4.3 and 4.7 x 3.9 (15'1" x 14'1" and 15'5" x - At the back of the house are a range of outbuildings, formerly used as stables many years ago, both with double doors, power and light laid on

Excellent Store - 4.7 x 4.9 (15'5" x 16'0") - Or additional workroom/garage

Loft Storage Rooms Above - 12.9 x 4.9 (42'3" x 16'0") - In three sections, original delivery hatch, light and water laid on. Covered side Store 3.9m in length

The Gardens - These are a most delightful feature of the house, completely private and sheltered creating a quiet 'oasis' with mature planting, water features, lovely sitting areas which is quite rare for a central location. Of particular note is the OFF ROAD PARKING and double gates which lead into the rear courtyard

Agents Note - Viewing Arrangements By appointment with Sterling Estate Agents on 01492-534477 e mail sales@sterlingestates.co.uk and web site www.sterlingestates.co.uk

Market Appraisal; Should you be thinking of a move and would like a market appraisal of your property then contact our office on 01492-534477 or by e mail on sales@sterlingestates.co.uk to make an appointment for one of our Valuers to call. This is entirely without obligation. Why not search the many homes we have for sale on our web sites - www.sterlingestates.co.uk or alternatively www.guildproperty.co.uk These sites could well find a buyer for your own home.

Money Laundering Regulations - In order to comply with anti-money laundering regulations, Sterling Estate Agents require all buyers to provide us with proof of identity and proof of current address. The following documents must be presented in all cases: Photographic ID (for example, current passport and/or driving licence), Proof of Address (for example, bank statement or utility bill issued within the previous three months). On the submission of an offer proof of funds is required.

Read more

Media

epc

epc

Llysfaen Road, Old Colwyn, Colwyn Bay

4 Bedroom Detached House

Llysfaen Road, Old Colwyn, Colwyn Bay

Bryn Lupus Drive, Llanrhos

2 Bedroom Detached Bungalow

Bryn Lupus Drive, Llanrhos

Dolwen Road, Old Colwyn

3 Bedroom Detached Bungalow

Dolwen Road, Old Colwyn

Rhys Evans Close, Penrhyn Bay, Llandudno

3 Bedroom Detached House

Rhys Evans Close, Penrhyn Bay, Llandudno

Dolwen Road, Old Colwyn, Colwyn Bay

3 Bedroom Detached Bungalow

Dolwen Road, Old Colwyn, Colwyn Bay

Dingle Hill, Colwyn Bay

4 Bedroom Detached House

Dingle Hill, Colwyn Bay


Update Cookies Preferences